項目概況
在歐式遍布的鄉(xiāng)村,業(yè)主希望建一棟極簡現代別墅,不想隨大流?,F代別墅大開間開敞設計,非常適合現代人的生活起居,室內光線充足,通風良好,可以舉行各種家庭活動。
本項目總建筑面積305.91㎡,其中一層建筑面積均為167.97㎡,二層建筑面積均為137.94㎡。

▲總平面圖
戶型設計

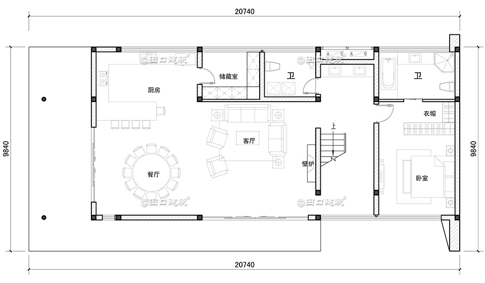
▲一層平面圖
一層:客廳、廚房、餐廳、公衛(wèi)、臥室(含衣帽間、衛(wèi))、儲藏室;

▲二層平面圖
二層:三臥室(期中兩個帶衛(wèi)、衣帽)、公衛(wèi)、露臺;
造型設計

▲東南角鳥瞰圖

▲西南角鳥瞰圖

▲南立面透視圖

▲西南角透視圖

▲西北角透視圖

▲東北角透視圖
END