項目概況
地基朝西,在山腳下新批的,我們過去的時候擋墻砌筑完成,場地平整,正面臨路,但高出道路2米多,視線不受道路影響,左右兩邊及后面都是山體,呈圍抱之勢。前面開闊,后有靠山,左右都是山,非常適合做為宅地。
業(yè)主是室內設計師,對設計有自己的理解,審美比較超前,為了迎合當地的建房大環(huán)境,經與業(yè)主溝通,最終設計現代中式風格,增加室內室外互動的空間,同時充分利用地形,做部分地下室。
本項目總建筑面積366.62㎡,其中一層和二層建筑面積均為124.76㎡,三層建筑面積117.10㎡。

▲總平面圖
戶型設計

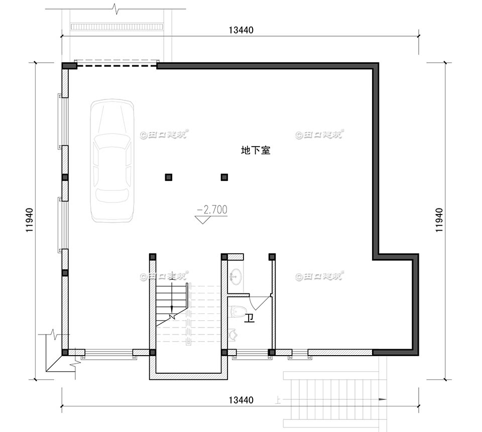
▲地下一層平面圖
地下一層:車庫、廚房、餐廳、雜物間、衛(wèi)生間、工具間、下沉庭院;

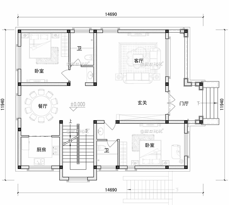
▲一層平面圖
一層:門廊、玄關、客廳、茶室、老人房(含臥室、衣帽間)、公衛(wèi)、中庭;

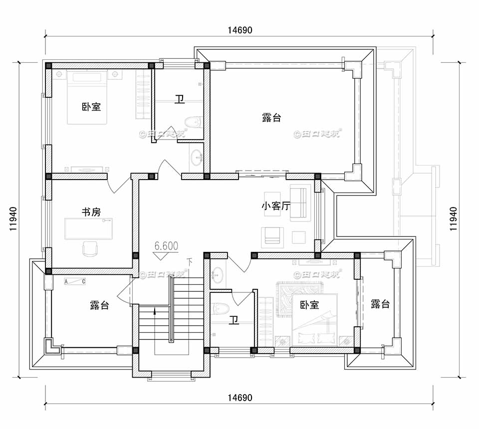
▲二層平面圖
二層:一套房(含衣帽間、衛(wèi)生間、書房)、兩臥室、公衛(wèi)、露臺;

▲二層平面圖
二層:一套房(含衣帽間、衛(wèi)生間、書房)、兩臥室、公衛(wèi)、露臺;
造型設計

▲西南角鳥瞰圖

▲西南角鳥瞰圖

▲院外西立面透視圖

▲西南角透視圖

▲西立面透視圖

▲東南角透視圖
END