項目概況
永不過時的別墅風格非中式莫屬,幾千年的傳承,經(jīng)典的造型與我們的氣候、文化等契合。地基位于海南,海南處于熱帶,氣候炎熱,我們在布局的時候做了些許的調(diào)整來適應當?shù)氐臍夂颉?/p>

▲圍墻外透視效果
戶型設計

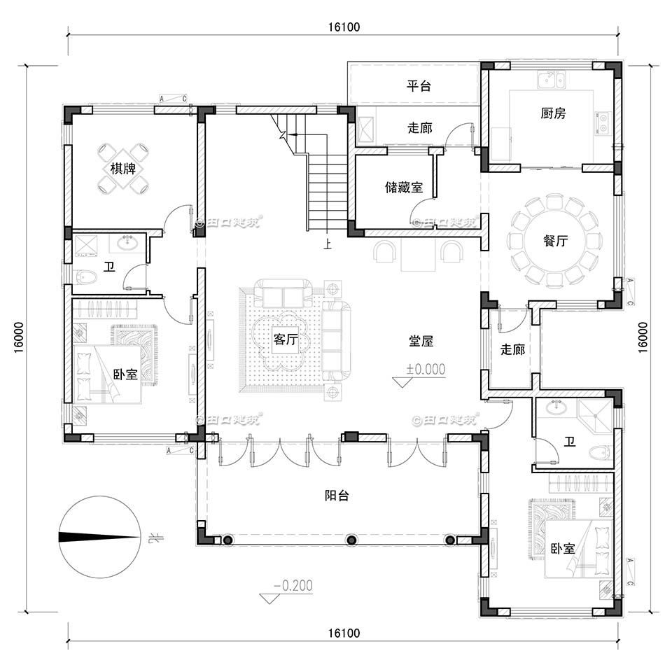
▲一層平面圖
整合堂屋與客廳,進門后大空間符合農(nóng)村的喜歡追求大的習俗,廚房緊鄰餐廳,老人房居于南側(cè),出入方便且采光好,客房、棋牌、公衛(wèi)、儲藏室該有的都有,且還設了后門去往后院;

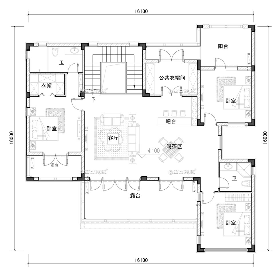
▲二層平面圖
一大套房、兩次臥、一公衛(wèi)、客廳、吧臺、公共衣帽間、陽臺;
造型設計

▲鳥瞰圖

▲鳥瞰圖

▲南立面圖

▲北立面圖

▲院門透視圖

▲院子透視圖

▲院子透視圖
施工過程

▲主體結(jié)頂
END