項目概況
此別墅位于環(huán)境非常優(yōu)美的蕭山南部云石,背靠山體,而且地勢幾乎是全村最高,非常適合作為度假別墅,閑暇時候邀請三五好友聊天、燒烤豈不美哉!業(yè)主之前已經(jīng)關(guān)注我們許久,非常中意新中式風格,蓋房審批程序走完以后,第一時間邀請我們?nèi)ガF(xiàn)場勘查。
此別墅占地面積120.0平方米,二層114.8平方米,二層106.3平方米。

▲鳥瞰圖
戶型設計

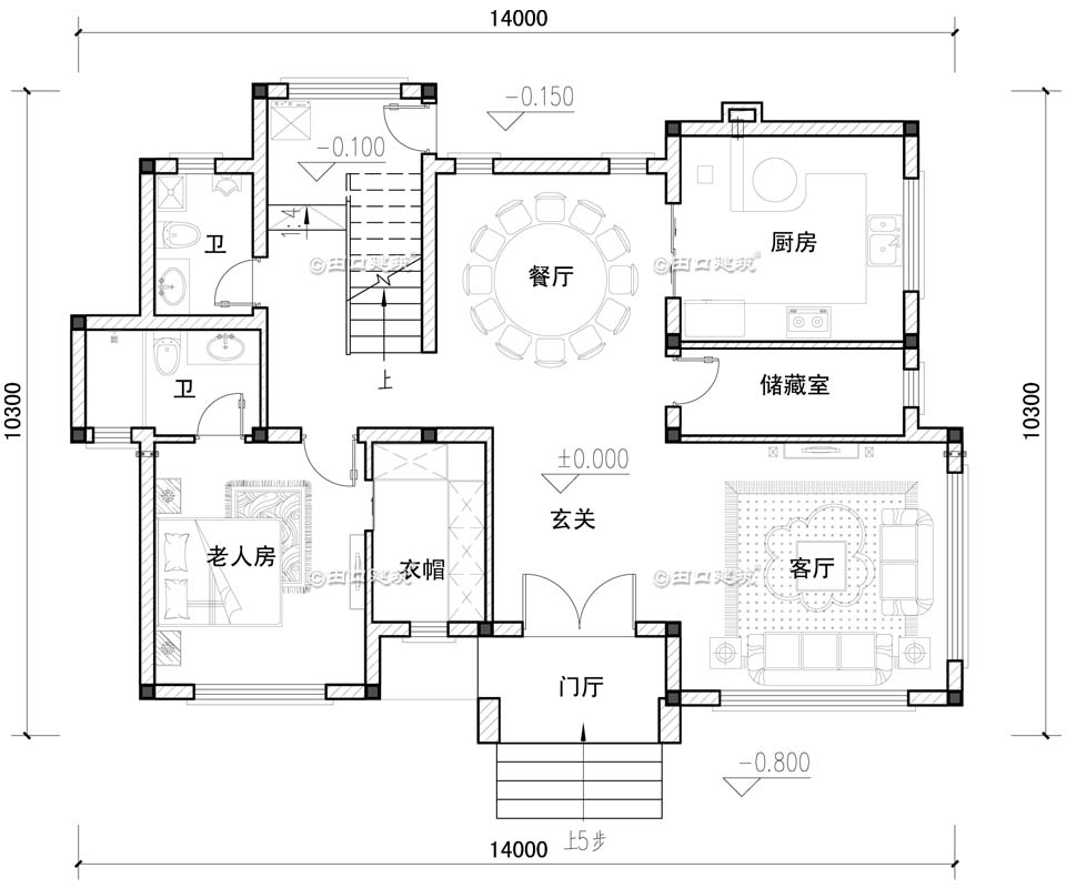
▲一層平面圖
正面做了進退變化,小四間設計使得房子看起來很大,客廳餐廳通過玄關(guān)串聯(lián)到一起,其他功能對應靠邊,廚房緊鄰餐廳,臥室遠離客廳餐廳,較為安靜,衛(wèi)生間位置較為隱蔽;

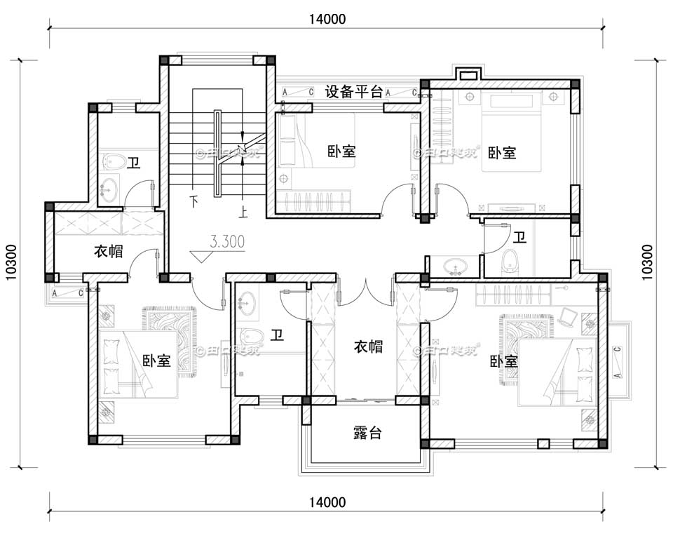
▲二層平面圖
兩個大套房(帶衛(wèi)生間、衣帽間),兩個次臥,一公衛(wèi),一露臺;

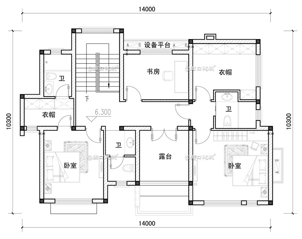
▲三層平面圖
兩個大套房(帶衛(wèi)生間、衣帽間),一書房,一露臺;
造型設計

▲南立面透視圖

▲東南角透視圖

▲西南角透視圖

▲東立面透視圖

▲東北角透視圖

▲院子透視圖

▲院子透視圖
END