項目概況
狹長地塊一直都是農村小住宅的噩夢,面寬小進深大,采光、通風極差,這位業(yè)主思想前衛(wèi),能接受很多較為大膽的想法。
方案設計
方案設計,我們從地基環(huán)境入手,充分尊重鄰居的要求,南面做了后退,盡量較少兩側鄰居的采光影響;
由于西側沒有采光,故在建筑中段朝東面打開,做了一個較大的中庭,解決采光通風問題;
西側靠后為了樓梯的采光通風,插入了一個較小的天井,同時也促進衛(wèi)生間的換氣;
因為房子總共有四層,較高,即使做了中庭,北面的房間采光依舊會受前面高的影響,所以我們將中庭南側的層高降低,使得更多的陽光可以進入北側的房間;

由上圖可見,我們在地基中安插了多個庭院(天井)化解空間幽暗狹長,極大地提升了室內空間質量,用一條流線串聯(lián)起這幾個庭院,使得人到每個位置都有不同的空間感受,室內室外不斷切換。
此建筑負一層152.0平方米,一層135.4平方米,二層、三層98.1平方米,四層78.0平方米。

▲鳥瞰圖
戶型設計

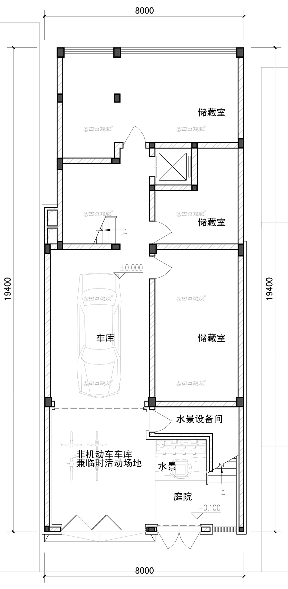
▲一層平面圖
該層主要用作附屬用房,如儲藏、車庫等,主要是為了將生活空間抬升,來獲取更多的陽光;

▲二層平面圖
此層才是生活層,廚房、餐廳、客廳、衛(wèi)生間,前中后三個院子將建筑分為幾個部分,每個空間有不同的景致;

▲三層平面圖
客廳挑空,另有兩個套房、一露臺;

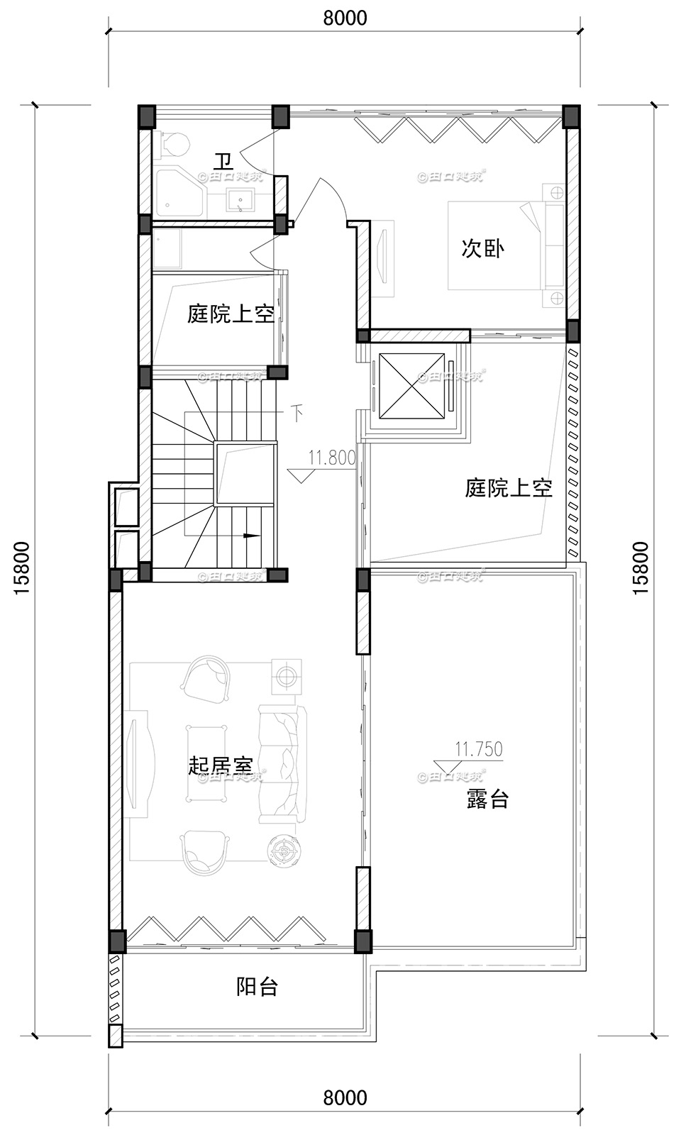
▲四層平面圖
兩套房、起居室、一陽臺;

▲五層平面圖
一套房、一起居室、大露臺、陽臺;
造型設計

▲鳥瞰圖

▲南立面圖

▲北立面圖

▲東南角透視圖

▲西南角透視圖

▲入口透視圖

▲入口院子透視圖
施工照片
▲主體完成

▲正立面
▲西南角透視
▲北立面
▲北立面幕墻

▲中庭
END