項目概況
本項目位于福建南平,總建筑面積471.68㎡,其中一層面積為125.02平方米,二層建筑面積為125.02㎡,三層建筑面積為125.02㎡,四層建筑面積96.62㎡。

▲正立面圖
戶型設計

▲一層平面圖
一層:門廳、堂屋、茶座、客廳、客臥、公衛(wèi)、老人套房、樓梯下做儲藏室;

▲二層平面圖
二層:兩個套房、客臥、公衛(wèi)、客廳、茶座、陽臺;

▲三層平面圖
三層:三個客臥、一個套房、公衛(wèi)、公共衣帽間、陽臺;

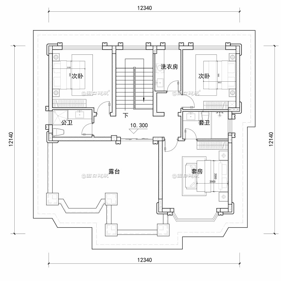
▲四層平面圖
四層:一個套房、兩個客臥、公衛(wèi)、洗衣房、露臺;
造型設計

▲正立面透視圖

▲東南角透視圖

▲西南角透視圖

▲西北角透視圖

▲西南角透視圖
▲鳥瞰圖
END