項目概況
本項目位于蕭山河上,總建筑面積363㎡,其中一層建筑面積為121㎡,二層建筑面積為121㎡,三層建筑面積121㎡。前期業(yè)主準備出租用,所以設計上總體以套房為主。結構上采取外磚混內框架的形式建造,后期自住方便改造。

▲鳥瞰圖
戶型設計

▲一層平面圖
一層:四個套房(均帶廚衛(wèi));

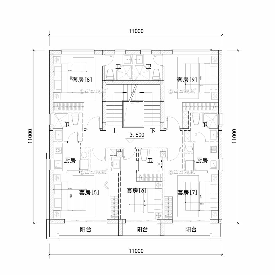
▲二層平面圖
二層:五個套房(兩個套房帶廚衛(wèi),三個套房帶衛(wèi));
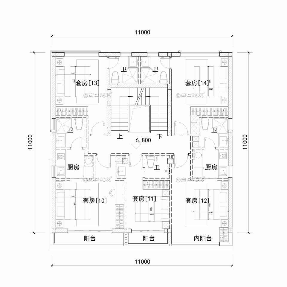
▲三層平面圖
三層: 五個套房(布局同二層);
造型設計

▲西南角鳥瞰圖

▲正立面透視圖

▲西北角透視圖

▲東南角透視圖

▲西南角透視圖
END