項目概況
本項目位于杭州余杭徑山,總建筑面積508㎡,其中地下室建筑面積127㎡,一層建筑面積為127㎡,二層建筑面積為127㎡,三層建筑面積127㎡。

▲鳥瞰圖
戶型設計

▲地下室平面圖
地下室:客廳、茶室、影音室、酒窖、公衛(wèi);

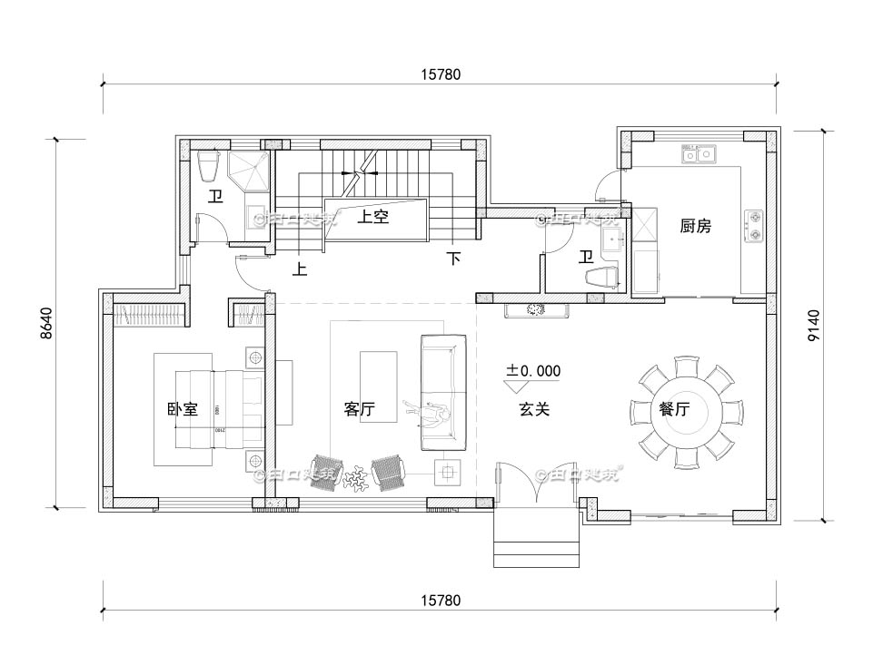
▲一層平面圖
一層:玄關、挑空客廳、廚房、餐廳、套房、公衛(wèi);

▲二層平面圖
二層:兩個套間、起居室、陽臺;

▲三層平面圖
三層:兩個套間、客房、公衛(wèi);
造型設計

▲東南角鳥瞰圖

▲西北角鳥瞰圖

▲正立面透視圖

▲東南角透視圖

▲北立面透視圖

▲東北角透視
END