項目概況
本項目位于杭州余杭中泰,總建筑面積700.99㎡,其中一層建筑面積為132.59㎡,二層建筑面積為137.78㎡,三層建筑面積123.77㎡,架空層306.85㎡。

▲鳥瞰圖
戶型設計

▲地下室平面圖
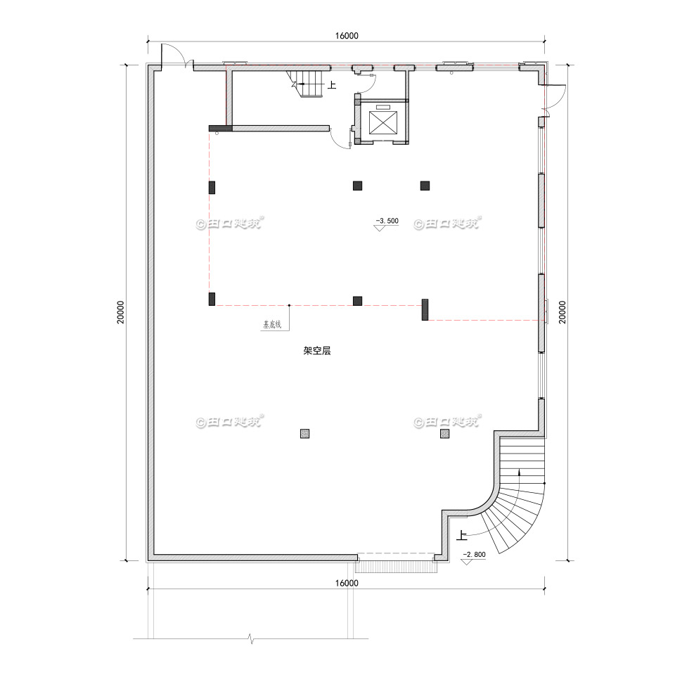
架空層:小型加工廠;

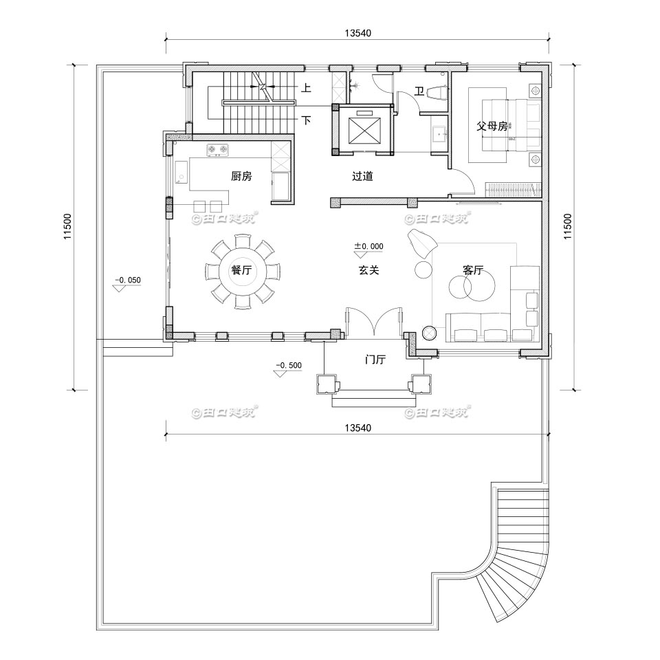
▲一層平面圖
一層:客廳、餐廳、玄關、廚房、父母房、電梯、公衛(wèi);

▲二層平面圖
二層:兩個套房、一臥室(帶陽臺)、儲藏室;

▲三層平面圖
三層:兩個套房(帶露臺)、書房、儲藏室;
造型設計

▲西南角鳥瞰圖

▲東北角鳥瞰圖

▲南立面透視圖

▲東南角透視圖

▲北立面透視圖
END