項目概況
此項目場地平整,北面臨河,西側(cè)的水庫泄水溝堤壩,東側(cè)與南側(cè)視線較好。
本項目總建筑面積397.19㎡,其中一層建筑面積為133.48㎡,二層建筑面積為143.85㎡,三層建筑面積119.86㎡。

▲總平面圖
戶型設計

▲一層平面圖
一層:門廳、玄關(guān)、客廳、廚房、大小餐廳、衛(wèi);

▲二層平面圖
二層:三套房(帶衛(wèi)、衣帽、陽臺);

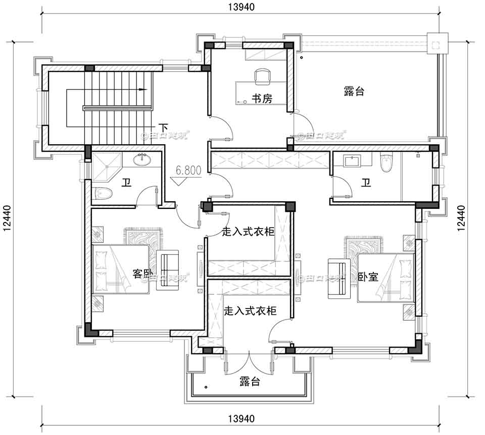
▲三層平面圖
三層:兩套房(帶衛(wèi)、衣帽,其中一個帶露臺)、書房、公共露臺;
造型設計

▲東南角鳥瞰圖

▲南立面透視圖

▲東立面透視圖

▲西南角透視圖

▲北立面透視圖
END